Skip to main content

Seasider Turf Field

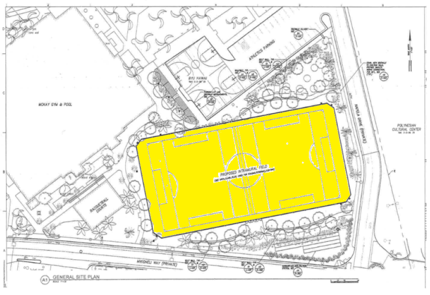
Aerial drawn view of a Seasider Sports Field for outdoor sports. The field is highlighted. McKay Gymnasium & Pool and Racquetball Courts are on the right-hand side of the map. A parking lot is in the top middle of the image. The turf field is right below the parking. Also, the paved roads are on the right-hand side and the bottom of the map.
A map plan of Seasider Turf Field and surrounding area.

Project Summary

Renovation

Completion: June 2021

The new field is elevated to allow subsurface stormwater detention, be covered in durable artificial turf, and receive high-quality sports lighting. The new light towers are taller than the existing structures, which allows for better light distribution and highly efficient cut-offs to eliminate light bleed to adjacent areas. The field is striped to accommodate multiple activities as well as allow two half-field games to occur simultaneously. This improvement is a part of the overall upgrade of the McKay Gymnasium complex. In conjunction with the McKay Pool replacement and Racquetball Court, the upgrade of this field represents a significant investment in the health and well-being of the BYU–Hawaii ohana. One that will create an all-weather facility that will improve academic and intramural programs for years to come.

Construction Gallery

Seasider Sports Field Video